Quadrilocale in vendita

Ficarazzi, Via Carlo Alberto Dalla Chiesa - Zona Nuova
€ 268.000
4 locali 4 locali
107 Mq 107 Mq
2 bagni 2 bagni

Quadrilocale in vendita

Ficarazzi, Via Carlo Alberto Dalla Chiesa - Zona Nuova

Descrizione annuncio

LA ZONA: Via Carlo Alberto Dalla Chiesa, nella rinomata zona nuova di Ficarazzi, ricca di nuove e recenti costruzioni. A pochi passi dalla statale che collega il paese a Palermo.

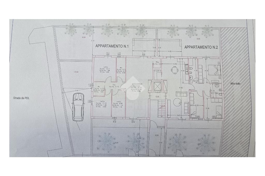
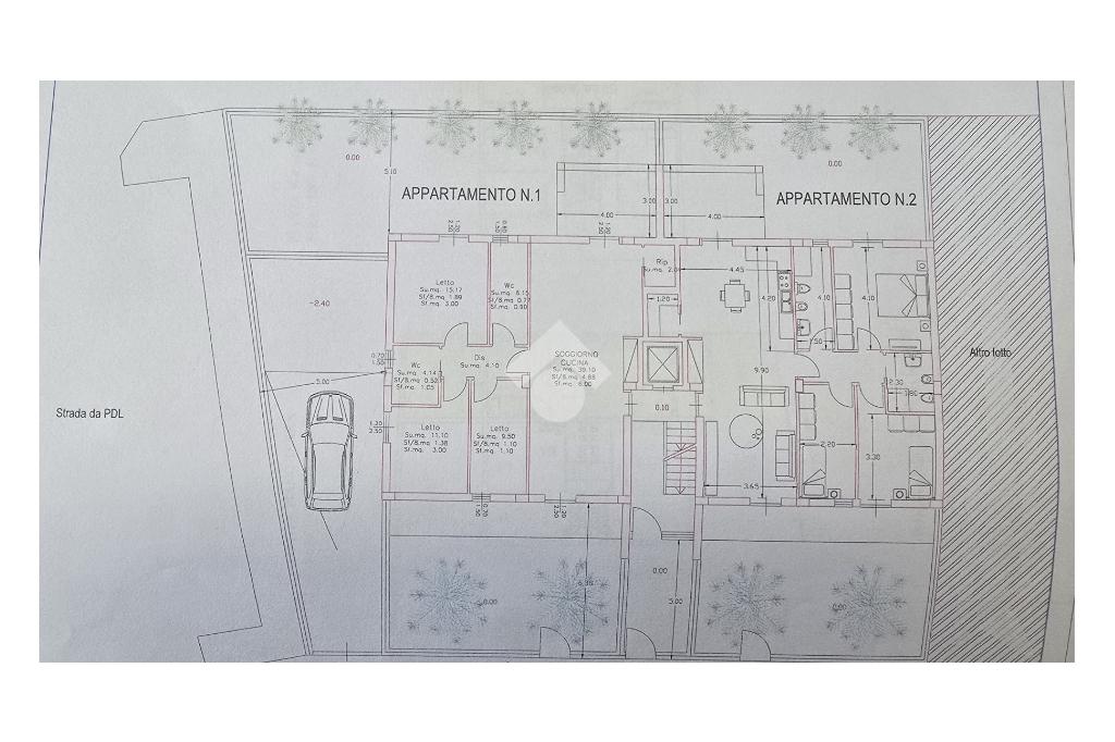
LA CASA: Due piani terra di prima abitazione all'interno di un delizioso contesto in fase di realizzazione dotato di ascensore e box auto tra i 25 e i 30 mq.
Gli appartamenti sono composti da cucina soggiorno openspace, camera da letto, due camerette e due bagni. A completare le case troviamo un terrazzo sul retro prospetto, di circa 85 mq per la casa a sinistra mentre a destra circa 50 mq, e infine un delizioso giardino privato sul prospetto principale di 55 mq.
Essendo in fase di costruzione vi è ampia scelta sul capitolato, soluzione ideale per chiunque sia alla ricerca di un appartamento chiavi in mano.

Visionabile tutti i giorni previo appuntamento telefonico o tramite WHATSAPP al numero 348 531 7081.
Il nostro franchising, su richiesta, mette a disposizione dei propri clienti un consulente che, si occupa della mediazione creditizia.
Contattateci se volete una consulenza, gratuita, per sapere quale sia la scelta più adatta alle vostre esigenze.
Ogni agenzia ha un proprio titolare ed è autonoma - Le presenti informazioni non costituiscono elemento contrattuale.

Mostra tutto

Nelle vicinanze

Trasporto pubblico Trasporto pubblico
Ficarazzi
Ficarazzi
480 m
Trasporto pubblico
1,7 Km
Galletti - Messina Marine
Galletti - Messina Marine
2,7 Km
Scuole Scuole
Scuola secondaria di primo grado di Ficarazzi
310 m
Scuole
1,2 Km
Scuola Elementare Fondo Palagonia
1,4 Km
Scuola Media Statale Pietro Palumbo
1,4 Km
Scuola Secondaria di 1° grado "Cosmo Guastella" - Plesso Portella di Mare
2,0 Km
Farmacia Farmacia
Nuova Farmacia Snc dei Dottori Alagna e C.
540 m
Parafarmacia Conad
890 m
Farmacia Ieraci-Riggio
1,2 Km
Farmacia D'Anna
1,7 Km
Farmacia Ganguzza
1,9 Km
Supermercati Supermercati
Conad
490 m
MD
1,2 Km
GD
1,7 Km
Fortè
1,7 Km
Decò
1,7 Km
Negozi Negozi
Corvaja In
810 m
Panificio
1,6 Km
Negozi
1,7 Km
Antiche Tradizioni di Grano
1,7 Km
Giglio è ...
1,7 Km
Bar Bar
Capitano
1,7 Km
Crazy Bar
1,8 Km
Camilleri
2,1 Km
Bar
2,3 Km
Ristoranti Ristoranti
Villa Fabiana
1,7 Km
Fontana
1,8 Km
Mordi e Fuggi
1,8 Km
Ferro di Cavallo 2
2,0 Km
A Ferrovia
2,1 Km
Mostra tutto

Caratteristiche

Rif.:
61109217
Piano:
Terra di 3 con ascensore
Totale piani:
3
Box:
1
Terrazzi:
1
Camere da letto:
3
Mostra tutto
Prezzo Prezzo
€ 268.000
Rata mutuo Rata mutuo
€ 1.264 / mese
Spese annue Spese annue
€ 10
Proponi il tuo prezzoProponi il tuo prezzo

Classe Energetica

A1
A1
A1
A1
A1
A1
A1
A1
A1
EP globale non rinnovabile:
135.00 kW h/m² anno
EP globale rinnovabile:
135.00 kW h/m² anno
EP invernale del fabbricato:
EP estiva del fabbricato:
Anno di costruzione:
2025
Riscaldamento:
Autonomo
Tipo impianto:
A radiatori
Tipo alimentazione:
Metano

Ti interessa visionare l'immobile?

Fissa un appuntamento  Fissa un appuntamento

Richiedi informazioni

Clicca su Leggi per aprire l'informativa
* Questi campi sono obbligatori

Calcola il tuo mutuo

Semplice e senza impegno
Anticipo

( % )
Mutuo

( % )

pochi semplici passi

inserisci i tuoi dati
Questionario completato
Grazie per aver richiesto un appuntamento senza impegno con un nostro Consulente del Credito e Assicurativo.

Hai inserito correttamente tutti i dati necessari e a breve riceverai una e-mail con un link da convalidare per inviare i tuoi dati.
Affiliato
Ficarazzi Sas
Corso Umberto, angolo via Merlo, 192 90010 Ficarazzi (PA)

Il nostro staff


  • Maria Picciurro
    Affiliata

  • Vanessa Biondo
    Collaboratrice

  • Alessia Bonomo
    Coordinatrice

  • Iolanda Cimino
    Responsabile

  • Roberta D'Agostaro
    Collaboratrice
Corso Umberto, angolo via Merlo, 192 90010 Ficarazzi (PA)
Zona: Ficarazzi-Santa Flavia-Porticello-Sant'Elia
Mostra su mappa
Orari: Dal Lunedì al Venerdì 9:00-13:00 15:30-19:30; Sabato 9:00-13:00
Affiliato
Ficarazzi Sas
Corso Umberto, angolo via Merlo, 192 90010 Ficarazzi (PA)

2025 Tecnocasa Franchising S.p.A. - P. IVA 08365160152 - Via Monte Bianco 60/A 20089 Rozzano (MI). Ogni agenzia ha un proprio titolare ed è autonoma. Privacy policy | Policy utilizzo | Cookie policy