Quadrilocale in vendita

Ficarazzi, Via meli
€ 77.000
4 locali 4 locali
109 Mq 109 Mq
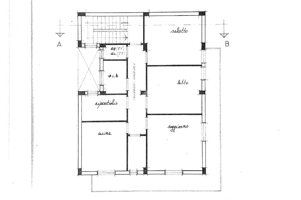
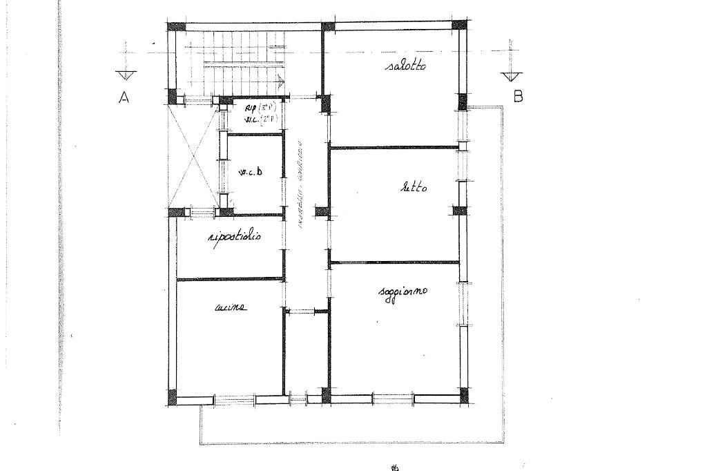
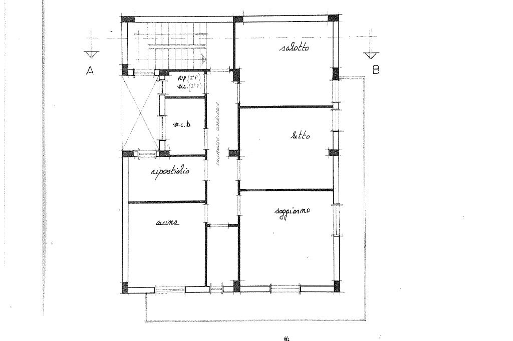
1 bagno 1 bagno

Quadrilocale in vendita

Ficarazzi, Via meli

Descrizione annuncio

LA ZONA: Via Meli, è situata ad angolo con il Corso principale, ad inizio Paese, a ridosso della via Messina Marine. La zona dispone di molteplici attività commerciali, come supermercati, farmacia, panifici ecc.

LO STABILE: Ubicato in un contesto tranquillo di soli quattro piani, con bassi costi di gestione.


L'IMMOBILE: Ampio appartamento posto al terzo piano, luminoso grazie alla sua doppia esposizione. Presenta ingresso su disimpegno che conduce alle varie zone della casa: abbiamo una cucina soggiorno con balcone, tre camere da letto, un bagno con doccia recentemente rimodernato e infine un ripostiglio.


Visionabile tutti i giorni previo appuntamento telefonico o tramite WHATSAPP al numero 348 531 7081.
Il nostro franchising, su richiesta, mette a disposizione dei propri clienti un consulente che, si occupa della mediazione creditizia.
Contattateci se volete una consulenza, gratuita, per sapere quale sia la scelta più adatta alle vostre esigenze.
Ogni agenzia ha un proprio titolare ed è autonoma - Le presenti informazioni non costituiscono elemento contrattuale.

Mostra tutto

Nelle vicinanze

Trasporto pubblico Trasporto pubblico
Ficarazzi
Ficarazzi
1,0 Km
Trasporto pubblico
1,6 Km
Galletti - Messina Marine
Galletti - Messina Marine
2,2 Km
Scuole Scuole
Scuola secondaria di primo grado di Ficarazzi
830 m
Scuole
1,1 Km
Scuola Media Statale Pietro Palumbo
1,2 Km
Scuola Elementare Fondo Palagonia
1,3 Km
1° Circolo Didattico Villabate - Plesso "Don Milani"
1,7 Km
Farmacia Farmacia
Nuova Farmacia Snc dei Dottori Alagna e C.
200 m
Parafarmacia Conad
630 m
Farmacia Ieraci-Riggio
1,0 Km
Farmacia D'Anna
1,6 Km
Farmacia Ganguzza
1,6 Km
Supermercati Supermercati
Conad
60 m
MD
800 m
Decò
1,4 Km
GD
1,4 Km
Salumeria - Non solo caffè
1,7 Km
Negozi Negozi
Corvaja In
490 m
Panificio
1,4 Km
Negozi
1,6 Km
Jaison
1,6 Km
Tutte le donne
1,6 Km
Bar Bar
Capitano
1,4 Km
Crazy Bar
1,5 Km
Camilleri
1,7 Km
Bar
1,9 Km
Ristoranti Ristoranti
Mordi e Fuggi
1,6 Km
Fontana
1,8 Km
Ferro di Cavallo 2
1,8 Km
A Ferrovia
1,8 Km
Villa Fabiana
1,9 Km
Mostra tutto

Caratteristiche

Rif.:
61173892
Piano:
3 di 4 (Piano alto)
Balconi:
2
Camere da letto:
3
Arredamento:
Assente
Condizionamento:
Assente
Mostra tutto
Prezzo Prezzo
€ 77.000
Rata mutuo Rata mutuo
€ 366 / mese
Spese annue Spese annue
€ 120
Proponi il tuo prezzoProponi il tuo prezzo

Classe Energetica

G
G
G
G
G
G
G
G
G
EP globale non rinnovabile:
131.00 kW h/m² anno
EP globale rinnovabile:
131.00 kW h/m² anno
EP invernale del fabbricato:
EP estiva del fabbricato:
Anno di costruzione:
1986
Riscaldamento:
Assente

Ti interessa visionare l'immobile?

Fissa un appuntamento  Fissa un appuntamento

Richiedi informazioni

Clicca su Leggi per aprire l'informativa
* Questi campi sono obbligatori

Calcola il tuo mutuo

Semplice e senza impegno
Anticipo

( % )
Mutuo

( % )

pochi semplici passi

inserisci i tuoi dati
Questionario completato
Grazie per aver richiesto un appuntamento senza impegno con un nostro Consulente del Credito e Assicurativo.

Hai inserito correttamente tutti i dati necessari e a breve riceverai una e-mail con un link da convalidare per inviare i tuoi dati.
Affiliato
Ficarazzi Sas
Corso Umberto, angolo via Merlo, 192 90010 Ficarazzi (PA)

Il nostro staff


  • Maria Picciurro
    Affiliata

  • Vanessa Biondo
    Collaboratrice

  • Iolanda Cimino
    Responsabile

  • Nadia Polito
    Collaboratrice
Corso Umberto, angolo via Merlo, 192 90010 Ficarazzi (PA)
Zona: Ficarazzi-Santa Flavia-Porticello-Sant'Elia
Mostra su mappa
Orari: Dal Lunedì al Venerdì 9:00-13:00 15:30-19:30; Sabato 9:00-13:00
Affiliato
Ficarazzi Sas
Corso Umberto, angolo via Merlo, 192 90010 Ficarazzi (PA)

2026 Tecnocasa Franchising S.p.A. - P. IVA 08365160152 - Via Monte Bianco 60/A 20089 Rozzano (MI). Ogni agenzia ha un proprio titolare ed è autonoma. Privacy policy | Policy utilizzo | Cookie policy