Casa indipendente in vendita

Ficarazzi, Via Mulinello
€ 217.000
4 locali 4 locali
168 Mq 168 Mq
3 bagni 3 bagni

Casa indipendente in vendita

Ficarazzi, Via Mulinello

Descrizione annuncio

LA ZONA: Via Mulinello, a ridosso del corso principale, vicina a servizi e attività commerciali. A pochi passi dalla stazione ferroviaria, raggiungibile a piedi.

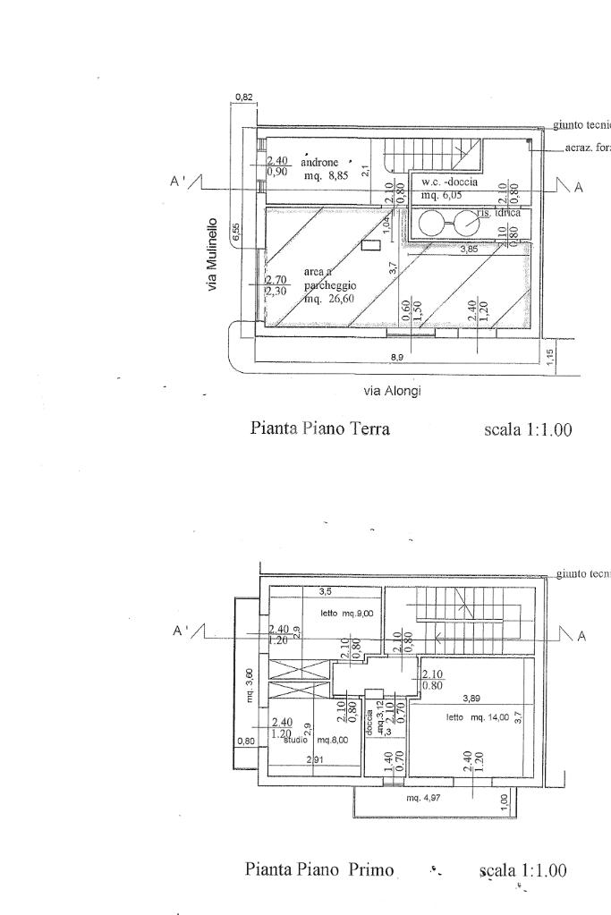
L'IMMOBILE: Ampia palazzina indipendente composta da piano terra, primo e secondo piano.
L'immobile, al momento totalmente da ristrutturare, verrà demolito e consegnato totalmente definito in chiave moderna con scelta sul capitolato.
Al piano terra troveremo un magazzino di 26mq circa dove poter parcheggiare i propri mezzi e un comodo wc con doccia.
Al piano primo, che avrà doppia esposizione, vi sarà la zona notte composta da camera da letto, due camerette e un bagno con doccia.
Al secondo ed ultimo piano, troveremo una confortevole cucina soggiorno openspace, un ulteriore bagno con doccia e per finire un delizioso terrazzo di 35 mq.
Soluzione ideale per chiunque sia alla ricerca di un immobile non solo indipendente, ma anche che sia nuovo, con posto auto e con spazio esterno.

Visionabile tutti i giorni previo appuntamento telefonico o tramite WHATSAPP al numero 348 531 7081.
Il nostro franchising, su richiesta, mette a disposizione dei propri clienti un consulente che, si occupa della mediazione creditizia.
Contattateci se volete una consulenza, gratuita, per sapere quale sia la scelta più adatta alle vostre esigenze.
Ogni agenzia ha un proprio titolare ed è autonoma - Le presenti informazioni non costituiscono elemento contrattuale.

Mostra tutto

Nelle vicinanze

Trasporto pubblico Trasporto pubblico
Ficarazzi
Ficarazzi
430 m
Trasporto pubblico
2,1 Km
Scuole Scuole
Scuola secondaria di primo grado di Ficarazzi
510 m
Scuole
1,8 Km
Scuola Elementare Fondo Palagonia
1,9 Km
Scuola Media Statale Pietro Palumbo
1,9 Km
Scuola Secondaria di 1° grado "Cosmo Guastella" - Plesso Portella di Mare
2,2 Km
Farmacia Farmacia
Nuova Farmacia Snc dei Dottori Alagna e C.
1,3 Km
Parafarmacia Conad
1,6 Km
Farmacia Ieraci-Riggio
1,8 Km
Farmacia D'Anna
2,2 Km
Farmacia Ganguzza
2,5 Km
Supermercati Supermercati
Conad
1,3 Km
MD
1,8 Km
Supermercati
2,0 Km
Fortè
2,0 Km
GD
2,2 Km
Negozi Negozi
Corvaja In
1,5 Km
Negozi
2,1 Km
Antiche Tradizioni di Grano
2,1 Km
Pandolfo
2,2 Km
Izzo
2,2 Km
Bar Bar
Capitano
2,3 Km
Crazy Bar
2,5 Km
Camilleri
2,7 Km
Ristoranti Ristoranti
Villa Fabiana
1,9 Km
Fontana
2,1 Km
Mordi e Fuggi
2,4 Km
Ferro di Cavallo 2
2,6 Km
A Ferrovia
2,6 Km
Mostra tutto

Caratteristiche

Rif.:
61140722
Piano:
Medio di 2
Totale piani:
2
Box:
1
Posti auto:
1
Balconi:
2
Mostra tutto
Prezzo Prezzo
€ 217.000
Rata mutuo Rata mutuo
€ 1.023 / mese
Spese annue Spese annue
€ 0
Proponi il tuo prezzoProponi il tuo prezzo

Classe Energetica

G
G
G
G
G
G
G
G
G
EP globale non rinnovabile:
112.00 kW h/m² anno
EP globale rinnovabile:
112.00 kW h/m² anno
EP invernale del fabbricato:
EP estiva del fabbricato:
Anno di costruzione:
2026
Riscaldamento:
Autonomo
Tipo impianto:
A radiatori
Tipo alimentazione:
Metano

Ti interessa visionare l'immobile?

Fissa un appuntamento  Fissa un appuntamento

Richiedi informazioni

Clicca su Leggi per aprire l'informativa
* Questi campi sono obbligatori

Calcola il tuo mutuo

Semplice e senza impegno
Anticipo

( % )
Mutuo

( % )

pochi semplici passi

inserisci i tuoi dati
Questionario completato
Grazie per aver richiesto un appuntamento senza impegno con un nostro Consulente del Credito e Assicurativo.

Hai inserito correttamente tutti i dati necessari e a breve riceverai una e-mail con un link da convalidare per inviare i tuoi dati.
Affiliato
Ficarazzi Sas
Corso Umberto, angolo via Merlo, 192 90010 Ficarazzi (PA)

Il nostro staff


  • Maria Picciurro
    Affiliata

  • Vanessa Biondo
    Collaboratrice

  • Alessia Bonomo
    Coordinatrice

  • Iolanda Cimino
    Responsabile

  • Roberta D'Agostaro
    Collaboratrice
Corso Umberto, angolo via Merlo, 192 90010 Ficarazzi (PA)
Zona: Ficarazzi-Santa Flavia-Porticello-Sant'Elia
Mostra su mappa
Orari: Dal Lunedì al Venerdì 9:00-13:00 15:30-19:30; Sabato 9:00-13:00
Affiliato
Ficarazzi Sas
Corso Umberto, angolo via Merlo, 192 90010 Ficarazzi (PA)

2025 Tecnocasa Franchising S.p.A. - P. IVA 08365160152 - Via Monte Bianco 60/A 20089 Rozzano (MI). Ogni agenzia ha un proprio titolare ed è autonoma. Privacy policy | Policy utilizzo | Cookie policy