Casa indipendente in vendita

Ficarazzi, Corso Umberto I
€ 50.000
Prezzo aggiornato
2 locali 2 locali
90 Mq 90 Mq
1 bagno 1 bagno

Casa indipendente in vendita

Ficarazzi, Corso Umberto I

Descrizione annuncio

LA ZONA: Corso Umberto I, il corso caratterizza l'intero paese di Ficarazzi per la sua estensione, che va dalla Via Messina Marine fino alla vicina Bagheria.

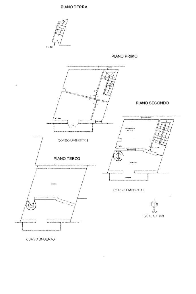
LA CASA: Adatta a coloro che sono stanchi di vivere in complessi condominiali e cercano l'indipendenza.
La scala interna conduce al 1° piano dove troviamo due camere da letto con balcone su prospetto ed un bagno con doccia.
Al 2° piano troviamo una deliziosa cucina abitabile con attiguo terrazzo, ideale per godersi pranzi e cene con amici e parenti all'aria aperta.
A completamento dell'immobile, un doppio terrazzo sovrastante con vista panoramica, da cui si accede tramite una scala a chiocciola.

Visionabile tutti i giorni previo appuntamento telefonico o tramite WHATSAPP al numero 348 531 7081.
Il nostro franchising, su richiesta, mette a disposizione dei propri clienti un consulente che, si occupa della mediazione creditizia.
Contattateci se volete una consulenza, gratuita, per sapere quale sia la scelta più adatta alle vostre esigenze.
Ogni agenzia ha un proprio titolare ed è autonoma - Le presenti informazioni non costituiscono elemento contrattuale

Mostra tutto

Nelle vicinanze

Trasporto pubblico Trasporto pubblico
Ficarazzi
Ficarazzi
300 m
Trasporto pubblico
1,7 Km
Galletti - Messina Marine
Galletti - Messina Marine
2,9 Km
Scuole Scuole
Scuola secondaria di primo grado di Ficarazzi
120 m
Scuole
1,2 Km
Scuola Elementare Fondo Palagonia
1,4 Km
Scuola Media Statale Pietro Palumbo
1,4 Km
Scuola Secondaria di 1° grado "Cosmo Guastella" - Plesso Portella di Mare
1,9 Km
Farmacia Farmacia
Nuova Farmacia Snc dei Dottori Alagna e C.
680 m
Parafarmacia Conad
970 m
Farmacia Ieraci-Riggio
1,3 Km
Farmacia D'Anna
1,7 Km
Farmacia Ganguzza
2,0 Km
Supermercati Supermercati
Conad
670 m
MD
1,2 Km
Fortè
1,6 Km
Supermercati
1,6 Km
GD
1,7 Km
Negozi Negozi
Corvaja In
910 m
Panificio
1,7 Km
Negozi
1,7 Km
Antiche Tradizioni di Grano
1,7 Km
Pandolfo
1,7 Km
Bar Bar
Capitano
1,8 Km
Crazy Bar
1,9 Km
Camilleri
2,1 Km
Bar
2,4 Km
Ristoranti Ristoranti
Villa Fabiana
1,7 Km
Fontana
1,7 Km
Mordi e Fuggi
1,9 Km
Ferro di Cavallo 2
2,0 Km
A Ferrovia
2,1 Km
Mostra tutto

Caratteristiche

Rif.:
61146732
Piano:
1 di 2 (Piano medio)
Balconi:
1
Terrazzi:
2
Camere da letto:
2
Arredamento:
Assente
Mostra tutto
Prezzo Prezzo
€ 50.000
Rata mutuo Rata mutuo
€ 238 / mese
Spese annue Spese annue
€ 0
Proponi il tuo prezzoProponi il tuo prezzo
Immobile valutato con T·Valuta

Classe Energetica

G
G
G
G
G
G
G
G
G
EP globale non rinnovabile:
112.00 kW h/m² anno
EP globale rinnovabile:
112.00 kW h/m² anno
EP invernale del fabbricato:
EP estiva del fabbricato:
Anno di costruzione:
1950
Riscaldamento:
Assente

Prezzo ridotto di €1 (10%%)

Ti interessa visionare l'immobile?

Fissa un appuntamento  Fissa un appuntamento

Richiedi informazioni

Clicca su Leggi per aprire l'informativa
* Questi campi sono obbligatori

Calcola il tuo mutuo

Semplice e senza impegno
Anticipo

( % )
Mutuo

( % )

pochi semplici passi

inserisci i tuoi dati
Questionario completato
Grazie per aver richiesto un appuntamento senza impegno con un nostro Consulente del Credito e Assicurativo.

Hai inserito correttamente tutti i dati necessari e a breve riceverai una e-mail con un link da convalidare per inviare i tuoi dati.
Affiliato
Ficarazzi Sas
Corso Umberto, angolo via Merlo, 192 90010 Ficarazzi (PA)

Il nostro staff


  • Maria Picciurro
    Affiliata

  • Vanessa Biondo
    Collaboratrice

  • Iolanda Cimino
    Responsabile

  • Nadia Polito
    Collaboratrice
Corso Umberto, angolo via Merlo, 192 90010 Ficarazzi (PA)
Zona: Ficarazzi-Santa Flavia-Porticello-Sant'Elia
Mostra su mappa
Orari: Dal Lunedì al Venerdì 9:00-13:00 15:30-19:30; Sabato 9:00-13:00
Affiliato
Ficarazzi Sas
Corso Umberto, angolo via Merlo, 192 90010 Ficarazzi (PA)

2026 Tecnocasa Franchising S.p.A. - P. IVA 08365160152 - Via Monte Bianco 60/A 20089 Rozzano (MI). Ogni agenzia ha un proprio titolare ed è autonoma. Privacy policy | Policy utilizzo | Cookie policy